Large-scale construction projects require precision in planning and resource allocation to maintain both timelines and budgets. Implementing detailed MEP cost estimation enhances project accuracy by quantifying material, labor, and equipment needs. It provides actionable insights for decision-making while minimizing financial risks, ensuring that complex systems are integrated efficiently. In the USA, an MEP Quantity Engineer earns around $89,188 per year.
Effective management of MEP systems depends on clearly defined roles and oversight of technical processes. Understanding MEP quantity surveyor responsibilities and scope ensures proper coordination across design, procurement, and installation stages. This expertise supports timely project completion and reliable cost monitoring, helping construction teams maintain standards while aligning resources with performance expectations throughout every phase of the build.
What Is MEP Quantity Surveying And Why Is It Vital For Project Success?
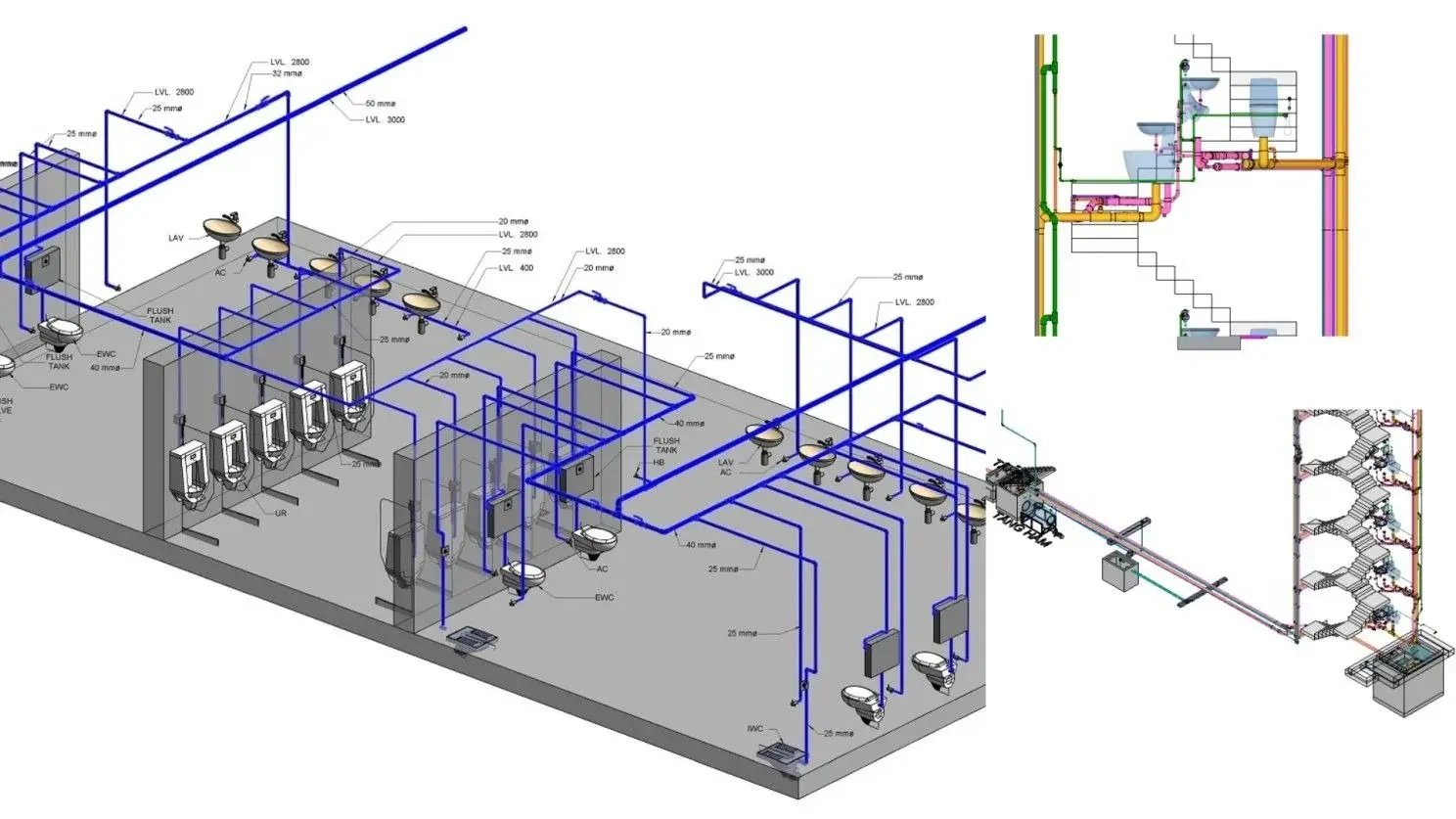
MEP quantity surveying involves the detailed measurement, costing, and management of mechanical, electrical, and plumbing systems in construction projects. It ensures accurate financial planning and resource allocation by applying methods like building services costing, providing projects with precise tracking of material and labor requirements and minimizing budgetary discrepancies during execution.
Here’s why MEP QS is important in construction projects:
-
Improves coordination among design, procurement, and installation teams, preventing conflicts in MEP system integration.
-
Facilitates effective construction cost control, helping teams monitor budgets and avoid overruns.
-
Supports reliable scheduling by identifying resource requirements early, enabling timely project delivery.
-
Ensures accurate mechanical electrical plumbing estimation, providing precise calculations that reduce material waste and unforeseen expenses.
-
Enhances decision-making through detailed reports and cost analysis, guiding management in planning and adjustments.
What Are The Key Responsibilities Of An MEP Quantity Surveyor?

An MEP Quantity Surveyor oversees the financial, technical, and operational aspects of building services projects. Their work ensures resources are allocated efficiently and costs are monitored accurately. By maintaining systematic records and analyzing data, they support decision-making processes while applying principles of construction cost management to achieve precision in project planning and control.
Here’s an overview of their primary responsibilities:
-
Cost Planning: Develop frameworks for tracking expenditures throughout the project lifecycle, ensuring budgets remain realistic.
-
Material Assessment: Review and quantify materials to optimize procurement and minimize waste.
-
Contract Evaluation: Monitor contractual obligations and prepare variations to maintain project compliance.
-
Design Coordination: Work closely with architects and engineers to incorporate MEP engineering requirements seamlessly into project designs.
-
Budget Monitoring: Apply tools and processes for project budgeting and estimation, ensuring financial accuracy and alignment with project objectives.
How Does An MEP QS Perform Accurate Estimation And Cost Control?
An MEP QS analyzes project plans, materials, and labor requirements to forecast expenses accurately. By reviewing site conditions and historical data, professionals can learn how MEP cost estimation improves project accuracy, helping maintain budgets, track costs effectively, and minimize financial discrepancies throughout the construction process.
Here’s how an MEP QS ensures precise estimation and cost control:
-
They quantify materials and labor for each phase to align budgets with project requirements.
-
Preparing and verifying the BOQ for MEP works ensures every system component is included in financial planning.
-
Continuous cost monitoring detects deviations early, supporting timely adjustments to stay within budget.
-
Digital tools and MEP software assist in automating calculations and improving the accuracy of estimates.
Did You Know?
MEP systems can account for roughly 30-40% of the total construction cost in commercial and complex buildings, underlining how essential precise estimation and surveying are for financial and schedule planning.
What Steps Are Involved In The MEP Estimation Process?

MEP estimation begins with a thorough understanding of project requirements, designs, and resources. Professionals analyze material needs, labor, and cost implications to create a reliable framework for planning. This approach highlights the benefits of detailed MEP BOQ in construction, supporting accurate financial forecasting and informed decision-making throughout all stages of a project.
Here’s an overview of the key steps in the MEP estimation process:
-
Project Requirement Review: Examine project scope, designs, and specifications to understand all technical and material requirements.
-
Quantity Take-Off: Measure and quantify materials, equipment, and labor needed for all MEP systems accurately.
-
Cost Calculation: Assign unit costs to materials and labor to develop a preliminary budget for the project.
-
Integration and Coordination: Align estimates with other disciplines, ensuring accurate resource allocation and avoiding conflicts.
-
Validation and Documentation: Apply MEP estimation workflow and best practices to verify calculations, create detailed reports, and finalize the estimation for approval.
Why Is MEP Estimation Crucial For Efficiency, Coordination, And Sustainability?
Accurate MEP estimation provides a clear understanding of project scope, costs, and scheduling. It helps teams coordinate activities, manage resources effectively, and reduce inefficiencies. By highlighting the importance of cost control in MEP-heavy projects, estimation supports sustainable practices and informed decision-making, ensuring that energy, materials, and labor are used efficiently throughout the construction process.
Here’s why MEP estimation is crucial for efficiency, coordination, and sustainability:
-
It ensures resources are allocated correctly, reducing delays and improving workflow.
-
Estimation provides a clear picture of project costs, preventing overspending and financial mismanagement.
-
Coordinating estimates across teams minimizes conflicts and rework on site.
-
Planning with accurate estimates helps reduce material waste and optimize energy use.
-
Detailed forecasting allows management to make informed decisions that balance efficiency with sustainable practices.
How Does MEP Quantity Surveying Contribute To Timely And Cost-Effective Project Delivery?

MEP quantity surveying supports projects in staying on schedule and within budget by providing precise measurements, cost projections, and resource tracking. Using digital tools and planning models, teams can improve forecasting, reduce errors, and enhance coordination, showing clearly how BIM improves MEP estimation accuracy and helps prevent delays or unexpected costs.
Here’s how MEP quantity surveying supports timely and cost-effective delivery:
-
It ensures accurate quantities of materials and labor for each stage of the project.
-
Budget tracking keeps expenses aligned with project plans and available resources.
-
Early identification of potential conflicts allows adjustments before delays occur.
-
Continuous monitoring prevents cost overruns and ensures resources are used efficiently.
Conclusion
Effective MEP quantity surveying provides projects with accurate cost planning, resource management, and scheduling, ensuring smoother operations and better alignment across teams. By integrating thorough estimation and monitoring practices, construction projects can maintain timelines, reduce errors, and support coordinated decision-making that enables overall efficiency and project outcomes.
Building expertise through programs such as the BIM Course for MEP Engineers offered by Novatr equips professionals with practical skills to strengthen project management. Understanding how MEP quantity surveying reduces project overruns helps teams control costs and timelines more effectively. For additional insights and guidance, visit our resource page to explore detailed materials and tools for MEP project planning.
FAQs
1. What does an MEP Quantity Surveyor (QS) do in a construction project?
An MEP QS measures, estimates, and manages the costs of mechanical, electrical, and plumbing systems to ensure accurate budgeting and resource allocation.
2. Why is MEP quantity surveying considered more complex than civil QS work?
It involves multiple interconnected systems, specialized materials, and detailed coordination across engineering disciplines, making estimation and planning more intricate.
3. What skills are essential for an MEP QS in modern construction?
Technical knowledge of MEP systems, cost estimation, digital modeling, and strong analytical and coordination skills are essential.
4. How does QS supports budgeting for MEP systems?
A QS provides accurate cost forecasts, tracks expenditures, and ensures resources are allocated efficiently to keep projects within budget.
Was this content helpful to you